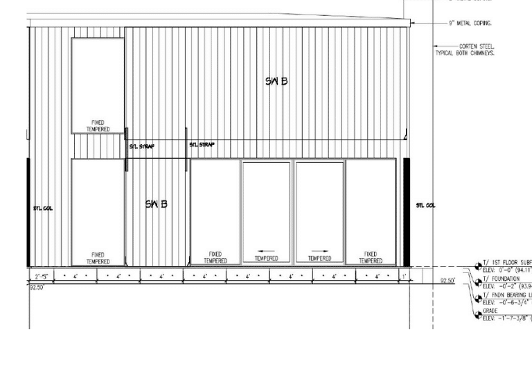
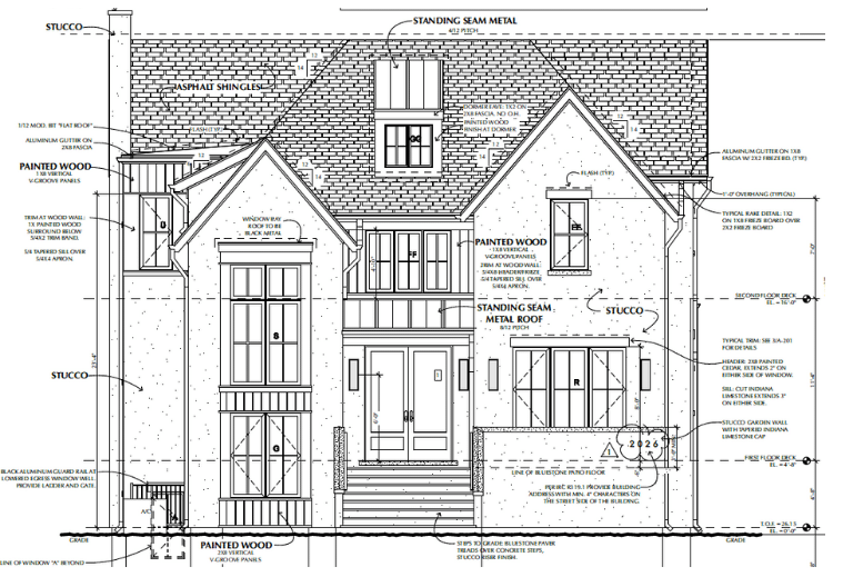
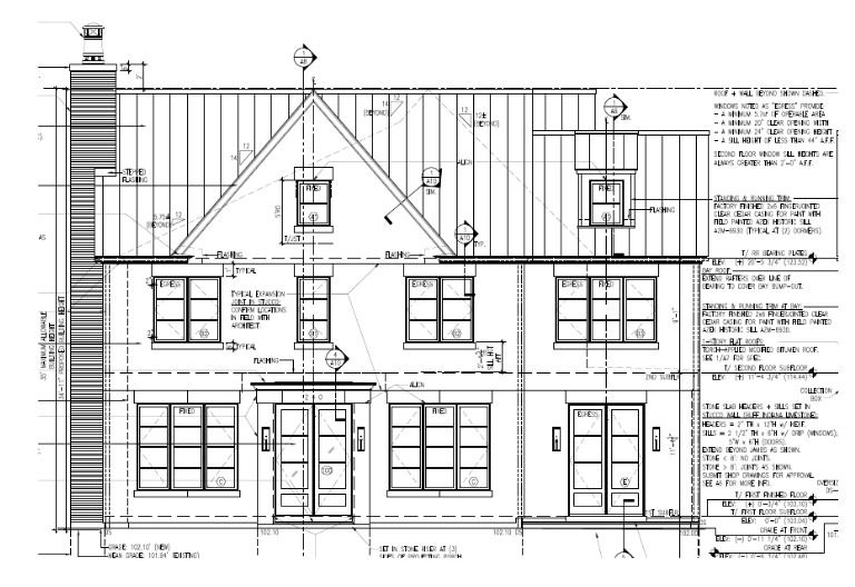
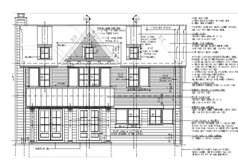
BEFORE AND AFTER: ARCHITECTURAL BLUEPRINT TO BEAUTIFUL HOME
The process of creating an architectural blueprint that will become your home is where your ideas meet the expertise of our architectural team. Together with the architects, you will brainstorm and envision and make the decisions that formalize your space as a plan for our team of builders.
It is one of the most exciting parts of the process! Below, please enjoy a look at how a few of our projects went from architectural plan to wonderful home.
(Swipe to advance the plans and see the finished homes.)
From architectural blueprint to finished product: see our projects below!
MODERN MOUNTAIN CRAFTSMAN
TRADITIONAL FRENCH COUNTRY
MODERN LAKE HOUSE
MULTI-GEN RESORT LIVING
MODERN FUSION
CONTEMPORARY SHINGLE STYLE
MODERN TUDOR
CONTEMPORARY TUDOR
RUSTIC CHIC NEW CONSTRUCTION
SOUTH COAST FARMHOUSE
STEP ONE: A CASUAL CHAT
Come visit with our team and we’ll help frame the potential timeline and budget while sharing our inspirations, experiences and recommendations.
ARCHITECTURAL SERVICES
We will bring an award-winning architecture acumen and extensive craftsmanship experience to your build. On your project we will form a united partnership that includes our licensed architects, builders, project management team, long-standing subcontractors, suppliers, craftspeople and – most importantly – you.
Construction Services
- Lot Feasibility Studies
- Bidding + Negotiation
- Permitting
- Construction Management
- Cost Control
- 3-year Warranty
Architecture + Design
- Interior/Exterior Architecture + Design
- Space Planning
- Lighting Design
- Furniture, Fixture + Equipment Selection
LEED Consulting
- Sustainable Strategies
- Life Cycle Cost Analysis
- LEED Design
- LEED Certification Process
- LEED Consulting
Historic Preservation
- Research
- Tax Credit Application
- Renovation
- Historic Guideline Implementation
- Awards + Recognition
Building and Job Types
- Single Family Homes
- Condominiums
- Co-ops
- Townhomes
- Residential Lofts
- Loft Offices
- Adaptive Reuse
- Renovations + Remodels
- Additions
- Historic Preservation
- Green Building
- Interior Design











































